Аналитический обзор распределителей четырехходовых для управления дистанционно-управляемыми клапанами на подводной лодке
- Авторы: Вахитов В.Ш.1
-
Учреждения:
- Санкт-Петербургское морское бюро машиностроения «Малахит»
- Выпуск: Том 4, № 1 (2025)
- Страницы: 23-31
- Раздел: Машиностроение
- Статья получена: 31.01.2025
- Статья одобрена: 03.02.2025
- Статья опубликована: 15.04.2025
- URL: https://rjraap.com/2414-1437/article/view/650446
- DOI: https://doi.org/10.52899/24141437_2025_01_23
- ID: 650446
Цитировать
Полный текст
Аннотация
В настоящее время на проектах подводных лодок самую большую группу исполнительных органов составляют дистанционно-управляемые клапаны, управление которыми осуществляется с помощью распределителей с электромагнитным приводом. Сравнительный анализ помогает выбирать варианты развития и оценивать альтернативы применения технических средств в обеспечение управления дистанционно-управляемыми клапанами.
Цель обзора было проведение сравнительной оценки используемых на подводных лодках четырехходовых распределителей с электромагнитным приводом в качестве технических средств для управления дистанционно-управляемыми клапанами. Результаты сравнительного анализа показывают в общей сложности однотипность по конструктивным и техническим характеристикам, а также по принципу действия используемых в настоящее время распределителей, что является предпосылками к созданию нового типа распределителей, обладающих меньшими габаритами и улучшенными характеристиками, что позволит оптимизировать размещение оборудования в крайне насыщенных различными техническими средствами отсеках подводных лодок.
Полный текст
ВВЕДЕНИЕ
На подводной лодке (далее ― ПЛ) применяется большое количество дистанционно-управляемых клапанов, предназначенных для установки в судовых системах в качестве запорного устройства. Учитывая замкнутый, ограниченный объем пространства, в системах используются клапаны с гидравлическими и пневматическими приводами.
Одним из основных элементов автоматизированных систем управления являются распределители пневматические и гидравлические с электромагнитными приводами. С их помощью осуществляется дистанционное и местное управление потоками рабочей среды, протекающими по трубопроводам, в которых установлены дистанционно-управляемые клапаны.
Существует большое многообразие распределителей с электромагнитными приводами, разрабатываемых и предлагаемых к применению различными предприятиями, специализирующимися на трубопроводной арматуре.
Распределители классифицируются:
а) по типу конструкции:
- трехходовые;
- четырехходовые.
б) по проводимой рабочей среде:
- пневматические;
- гидравлические.
в) по количеству электромагнитных приводов:
- с одним электромагнитным приводом;
- с двумя электромагнитными приводами.
В настоящей статье выполняется обзор основных технических характеристик распределителей четырехходовых пневматических (гидравлических) с электромагнитными приводами, применяемых на проектах ПЛ АО «СПМБМ «Малахит».
ОПИСАНИЕ СУЩЕСТВУЮЩИХ РАСПРЕДЕЛИТЕЛЕЙ ЧЕТЫРЕХХОДОВЫХ С ЭЛЕКТРОМАГНИТНЫМИ ПРИВОДАМИ
В настоящее время одними из ведущих поставщиков распределителей являются АО «ЗМС «Знамя труда», АО «НПФ «ЦКБА», АО «Аскольд», АО «ЦТСС» КБ «Армас» и др.
1. Распределители разработки АО «ЗМС «Знамя труда»
АО «ЗМС «Знамя труда» разрабатывает:
- клапаны распределительные четырехходовые пневматические Т055.096 и гидравлические Т055.096-04 с двумя электромагнитными приводами по ТУ302-07-465-91;
- распределители четырехходовые пневматические Т055.064 с одним электромагнитным приводом по ТУ26-07-198-78;
- клапаны распределительные четырехходовые пневматические Т055.098 с одним электромагнитным приводом по ТУ302-07-465-91;
- распределители четырехходовые пневматические Т055.048 и гидравлические Т055.048-04 с двумя электромагнитными приводами по ТУ26-07-198-78.
1.1. Клапаны распределительные Т055.096 состоят из следующих основных узлов и деталей (рис. 1):
1) корпуса 1;
2) крышки поз. 6, присоединяющейся к напорной магистрали через штуцер «П», к приводу дистанционно-управляемого клапана через штуцера «1» и «2», сообщающейся со сбросом через штуцер «С»;
3) двух золотников поз. 18 с резиновым уплотнением, обеспечивающих герметичность затвора;
4) ползуна поз. 3, в который вставляется фторопластовое уплотнение поз. 12 для обеспечения герметичности;
5) двух поршней поз. 4 с резиновыми кольцами поз. 5, обеспечивающих перемещение ползуна 3 в крышке поз. 6;
6) корпуса электромагнитного привода поз. 25, предназначенного для размещения двух катушек поз. 32, общей клеммной платы поз. 53, сальника кабельного ввода, двух якорей поз. 33 и двух стопов поз. 47, двух крышек поз. 45, предназначенных для размещения кнопок (ручных дублеров);
7) двух кнопок, состоящих из толкателей поз. 41, пружины поз. 40, обеспечивающих ручное (местное) управление.
Рис. 1. Клапан распределительный Т055.096.
Fig. 1. Distribution valve Т055.096.
Основные характеристики клапанов распределительных1:
1) условный проход DN: 6 мм;
2) рабочее давление: (4,5±0,5) МПа;
3) рабочая среда: воздух с относительной влажностью (60±3) % при температуре 35 °С;
4) температура рабочей среды: до +65 °С;
5) характеристики электромагнитного привода:
- род тока: постоянный;
- напряжение: () В;
- номинальная потребляемая мощность: не более 25 Вт;
- режим работы: импульсное включение продолжительностью не менее 2 с;
6) масса: 12,5 кг.
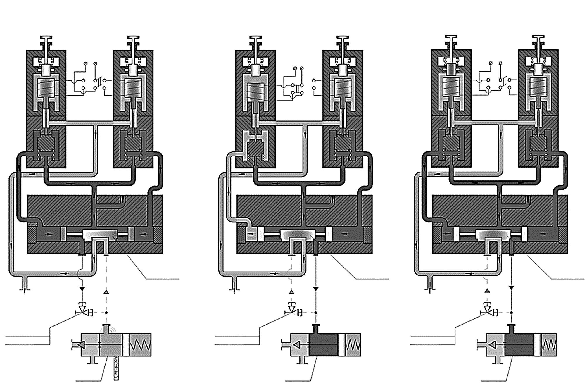
Принцип действия клапана распределительного показан на примере управления нормально-закрытым дистанционно-управляемым клапаном и заключается в следующем (рис. 2).
Рис. 2. Принцип действия клапанов распределительных Т055.096.
Fig. 2. Operating principle of distribution valves T055.096.
В исходном положении клапан «К» закрыт. При этом электромагниты «ЭМ-1» и «ЭМ-2» клапана распределительного «(Р)» обесточены, золотники электромагнитов под действием пружин находятся в верхнем положении. Правая и левая полости клапана распределительного «(Р)» заполнены рабочим воздухом, ползун находится в крайнем правом положении. Полость открытия клапана «К» через штуцер «2», ползун и штуцер «С» соединена с атмосферой помещения.
Для открытия клапана «К» подается импульс напряжения от 2 до 5 с на электромагнит «ЭМ-1». Золотник электромагнита «ЭМ-1» переместится вниз и перекроет канал подачи воздуха в полость электромагнита, воздух из полости электромагнита и левой полости клапана распределительного «(Р)» стравится в атмосферу помещения.
Ползун под действием рабочего давления воздуха в правой полости клапана распределительного «(Р)» переместится влево, и через штуцер «2» в полость открытия клапана «К» поступит рабочий воздух, тем самым обеспечивая открытие клапана «К».
Через (2–5) с импульс на открытие с электромагнита «ЭМ-1» снимется. Золотник электромагнита «ЭМ-1» переместится в верхнее положение под действием пружины. В полость электромагнита «ЭМ-1» и левую полость клапана распределительного «(Р)» поступит рабочий воздух, при этом ползун останется в том же положении.
1.2. Клапаны распределительные Т055.096-04 аналогичны по основным характеристикам, конструкции, принципу действия клапанам распределительным Т055.096 и предназначены для управления дистанционно-управляемыми клапанами с гидроприводом. Рабочей средой является вода питательная по ОСТВ5Р.4296, рабочее давление от 2,5 до 7,0 МПа.
1.3. Распределители Т055.064 состоят из следующих основных узлов и деталей (рис. 3):
1) корпуса поз. 9, через который проходит рабочая среда;
2) резинометаллических золотников поз. 8, 45, 68, обеспечивающих герметичность в затворе;
3) поршней поз. 5 и 65;
4) седел поз. 7, 43, 67;
5) мембран поз. 4, 64;
6) электромагнитного привода, обеспечивающего срабатывание распределителей, со встроенными кнопками.
Рис. 3. Распределитель Т055.064.
Fig. 3. Distributor T055.064.
Основные характеристики распределителей2:
1) условный проход DN: 6 мм;
2) рабочее давление: от 2,5 до 5,5 МПа;
3) рабочая среда: воздух с относительной влажностью (95±3) % при температуре 35 °С;
4) температура рабочей среды: до + 65 °С;
5) характеристики электромагнитного привода:
- род тока: постоянный;
- напряжение (24±1,2) В;
- номинальная потребляемая мощность: не более 20 Вт;
- режим работы: постоянная подача напряжения;
6) масса: 5,5 кг.
Принцип действия распределителей Т055.064 заключается в следующем (рис. 4).
Рис. 4. Принцип действия распределителей Т055.064.
Fig. 4. Operating principle of distributors T055.064.
При обесточенной катушке под давлением пружины золотник 1 находится в верхнем крайнем положении. При подаче давления в штуцер «П» воздух перемещает золотник 2 в правое крайнее положение и далее поступает через штуцер «1» в пневмопривод. Одновременно воздух поступает на поршень, который перемещает золотник 3 в левое крайнее положение. Золотник 3 перекрывает проход воздуха в пневмопривод через штуцер «2».
При подаче напряжения на катушку, якорь, притягиваясь к стопу, действует через шток на золотник 1 и перемещает его в нижнее крайнее положение. Воздух перемещает золотник 3 в правое крайнее положение и проходит через штуцер «2» в пневмопривод. Одновременно воздух поступает на поршень, который перемещает золотник 2 в левое крайнее положение и перекрывает доступ воздуха в штуцер «1». При этом воздух из пневмопривода, соединенного со штуцером «1», сбрасывает через штуцер «С».
1.4. Клапаны распределительные Т055.098 по основным характеристикам, конструкции и принципу действия аналогичны распределителям Т055.064.
1.5. Распределители Т055.048, Т055.048-04 по основным характеристикам, конструкции и принципу действия аналогичны клапанам распределительным Т055.096, Т055.096–04.
2. Распределители разработки АО «НПФ «ЦКБА»
АО «НПФ «ЦКБА» разрабатывает:
- клапаны распределительные четырехходовые пневматические ЦКБТ055.096М и гидравлические ЦКБТ055.096М-04 с двумя электромагнитными приводами по ТУ3742-345-34390194-2013;
- клапаны распределительные четырехходовые пневматические ЦКБТ055.098М с одним электромагнитным приводом по ТУ3742-345-34390194-2013.
Клапаны распределительные по составу, основным техническим характеристикам и принципу действия идентичны распределителям, указанным в разделе 1.
3. Распределители разработки АО «Аскольд»
АО «Аскольд» разрабатывает манипуляторы четырехходовые двухпозиционные с электромагнитным приводом по ИПЛТ.494621.006ТУ.
Манипулятор состоит из основных узлов (рис. 5):
- два узла управления;
- два золотниковых узла;
- узел проточной части.
Рис. 5. Манипулятор ИПЛТ.494621.006.
Fig. 5. Manipulator IPLT.494621.006.
Узел управления состоит из корпуса электромагнита поз. 21, штока поз. 32, пружины поз. 33, катушки поз. 34, якоря поз. 35, кнопки ручного управления поз. 39 и предназначен для дистанционного и ручного управления манипулятором.
Золотниковый узел состоит из втулки поз. 27, пружины поз. 29, золотника поз. 30, втулки поз. 31 и предназначен для обеспечения рабочего перепада на поршнях.
Узел проточной части состоит из корпуса поз. 1, двух поршней поз. 2, ползуна поз. 3, пружины поз. 7, фланца поз. 11 и предназначен для передачи проводимой среды потребителям.
Основные характеристики манипуляторов3:
1) условный проход DN: 10 мм;
2) рабочее давление: (0,6–1,5) МПа;
3) рабочая среда: вода;
4) температура рабочей среды: до +90 °С;
5) характеристики электромагнитного привода:
- род тока: постоянный;
- напряжение: (27±2,7) В;
- номинальная потребляемая мощность: не более 20 Вт;
- режим работы: постоянная подача напряжения;
6) масса: 21 кг.
Принцип действия манипуляторов аналогичен распределителям, рассмотренным в разделе 1.
4. Распределители разработки АО «ЦТСС» КБ «Армас»
АО «ЦТСС» КБ «Армас» разрабатывает распределители четырехходовые пневматические с одним электромагнитным приводом и ручным управлением по ОСТ5Р.5571.
Распределители состоят из следующих основных узлов и деталей (рис. 6):
- проточной части;
- импульсной группы;
- электромагнита.
Рис. 6. Распределитель ИТШЛ.494611.014.
Fig. 6. Distributor ITSHL.494611.014.
Проточная часть предназначена для непосредственного изменения потока воздуха и состоит из корпуса поз. 15 и 32, штока-поршней поз. 17 и 21, тарелок поз. 25, пружин поз. 24 и крышек поз. 23.
Импульсная группа поз. 41 предназначена для управления положением штока-поршня и тарелки путем подачи или снятия давления на штоке-поршне и состоит из тарелок и седла.
Электромагнитный привод предназначен для перемещения тарелок при подаче на него напряжения и состоит из корпуса электромагнита поз. 39, катушки поз. 48, сердечника поз. 38, якоря поз. 33, вала эксцентрикового поз. 29, ручки поз. 26 и пружин поз. 37 и 32.
Основные характеристики распределителей4:
1) условный проход DN: 10 мм;
2) рабочее давление: от 0,6 до 5,5 МПа;
3) рабочая среда: воздух;
4) характеристики электромагнитного привода:
- род тока: постоянный;
- напряжение: (24±1,2) В;
- номинальная потребляемая мощность: не более 15 Вт;
- режим работы: постоянная подача напряжения;
5) масса: 10,5 кг.
Принцип действия заключается в следующем (рис. 7).
Рис. 7. Принцип действия распределителя ИТШЛ.494611.014.
Fig. 7. Operating principle of distributors ITSHL.494611.014.
Проводимая среда рабочего давления подается в штуцер 1. При отсутствии напряжения на электромагните среда попадает на тарелки 2, 3, 4 и в полость справа от штока-поршня 2. Тарелки 2, 4 под действием усилия пружин 2, 4 перекрывают проход в седле и в основании корпуса. Тарелка 4 одновременно открывает отверстие в штоке-поршне 2, сообщая тем самым потребитель (штуцер «4») со сбросом (штуцер «2»). В то же время проводимая среда, попадая на шток-поршень 2, смещает штоки-поршни 1, 2 и тарелку 3 влево, открывая тарелкой 3 отверстие в основании корпуса и перекрывая в штоке-поршне 1.
Таким образом, при отключенном электромагните проводимая среда из напора (штуцер «1») попадает к потребителю (штуцер «3»), а потребитель (штуцер «4») соединен со сбросом (штуцер «2»).
При подаче напряжения на электромагнит якорь, сжимая пружину 1, перемещается вниз и перемещает тарелки 1 и 2, перекрывая верхнее отверстие и открывая нижнее отверстие в седле. Проводимая среда под рабочим давлением попадает в полость слева от штока-поршня 1 и перемещает шток-поршни 1, 2 вправо, открывая тарелкой 4 отверстие в основании корпуса и перекрывая отверстие в штоке-поршне 2, сообщая тем самым потребитель (штуцер «4») с напором (штуцер «1»). В то же время тарелка 3 под действием усилия пружины 3 перекрывает отверстие корпуса и открывает отверстие в шток-поршне 1, сообщая тем самым потребитель (штуцер «3») со сбросом (штуцер «2»).
Таким образом, при включенном электромагните проводимая среда из напора (штуцер «1») попадает к потребителю (штуцер «4»), а потребитель (штуцер «3») соединяется со сбросом (штуцер «2»).
ЗАКЛЮЧЕНИЕ
В статье описаны некоторые типы четырехходовых распределителей, используемых на проектах ПЛ АО «СПМБМ «Малахит». Все применяемые распределители в общей сложности однотипны по конструкции, техническим характеристикам и принципу действия, что является предпосылкой к созданию нового типа распределителей для управления дистанционно-управляемыми клапанами.
ДОПОЛНИТЕЛЬНАЯ ИНФОРМАЦИЯ
Источник финансирования. Автор заявляет об отсутствии внешнего финансирования при проведении исследования.
Конфликт интересов. Автор декларирует отсутствие явных и потенциальных конфликтов интересов, связанных с публикацией настоящей статьи.
ADDITIONAL INFO
Funding source. This study was not supported by any external sources of funding.
Competing interests. The author declares that they have no competing interests.
1 АО ЗМС «Знамя труда». Клапан распределительный с электромагнитным приводом Ду6. Техническое описание и инструкция по эксплуатации. Т055.096ТО
2 АО ЗМС «Знамя труда». Распределитель пневматический с электромагнитным приводом Ду6, Рр от 2,5 до 5,5 МПа (от 25 до 55 кгс/см2), t до 65 °С. Техническое описание и инструкция по эксплуатации. Т055.064ТО.
3 АО «Аскольд». Манипулятор четырехходовой штуцерный двухпозиционный с электромагнитным и ручным управлением из спецсплава. Техническое описание и инструкция по эксплуатации. ИПЛТ.494621.006ТО.
4 АО ЦТСС КБ «Армас». Распределитель пневматический четырехходовой штуцерный с электромагнитным и ручным приводом DN10 Рр6…55РЭ. Руководство по эксплуатации. ИТШЛ.494611.014РЭ.
Об авторах
Виль Шамилевич Вахитов
Санкт-Петербургское морское бюро машиностроения «Малахит»
Автор, ответственный за переписку.
Email: vakhitov_vil@mail.ru
инженер-конструктор 1-й категории
Россия, 196135, Санкт-Петербург, ул. Фрунзе, д. 18Список литературы
Дополнительные файлы










